马上注册,结交更多好友,享用更多功能,让你轻松玩转社区。
您需要 登录 才可以下载或查看,没有账号?立即注册
x
1.管道风机英飞风机官网
方钉导航
2.管道风机图片
火灾排烟火灾时接消防中心指令开启防烟分区的防火排烟阀、管道式排烟风机排烟,也可以在防烟分区就地开启防火排烟阀、管道式排烟风机排烟并向消防中心报告当烟气温度超过280℃时,防火排烟阀、管道式排烟风机自动关闭,并向消防中心报告。
3.管道风机品牌十大排行
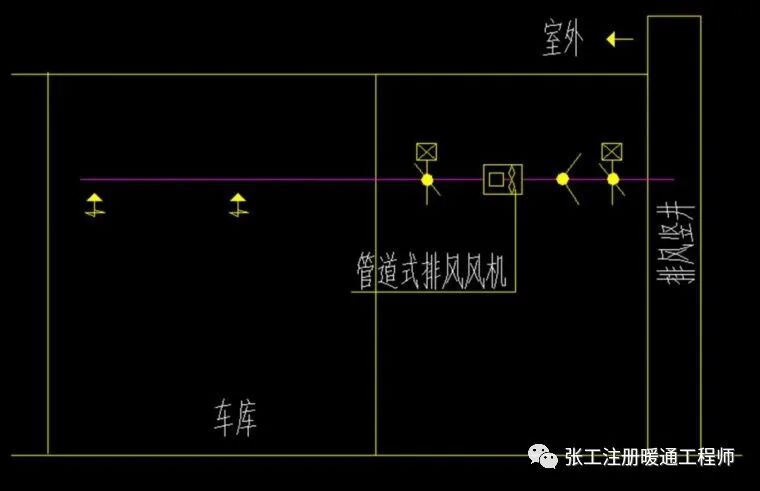
生产车间排除生产烟雾需要时手动控制开启管道式排烟风机通过排烟管道将烟雾排到室外。管道式排烟风机和排烟管道安装在室内,排烟口接到室外安全地方排放。功能原理示意
4.管道风机什么品牌质量好
生产车间排除生产烟雾
5.管道风机怎么装吸力大
火灾排烟
6.管道风机和换气扇哪个效果好
设备实物:  
7.管道风机安装视频全过程
设备特点轴流式排烟风机扬程较小 (400 Pa以下),耗电小,结构简单造价低,安装方便混流式排烟风机是中压风机 (400~600Pa),耗电小,结构简单造价低,安装方便厢式风机厢式内部的风机可以是轴流式风机。
8.管道风机和油烟机哪个好?
也可以混流式风机离心式风机主要优点是设备与厢体接触的底座上面装有减震装置,而且设备封闭的安装在机箱内部,所以对于室内来说传入的噪声相对要小些因为增加了以上介绍的处理工艺,所以整体设备造价相对要高一点以上是利用动力进行强制性排烟的常用设备。
9.管道风机接线图
管道材质可以是砖制.混凝土制管道井,可以是钢板制风管,也可以是无机不燃玻璃钢制风管管道出口方向:一般通过管道引至屋顶排至室外优化建议设备在室内吊装安装时,设备要安装减震吊架,并且在风管和设备连接处安装防火软接,这些处理对消声减震有很好的效果。
10.管道风机150和200
方钉导航
|